Lotissement Saint Martin

Contact

Rue Saint Martin
35420 Louvigné-du-Désert

02 99 98 01 50

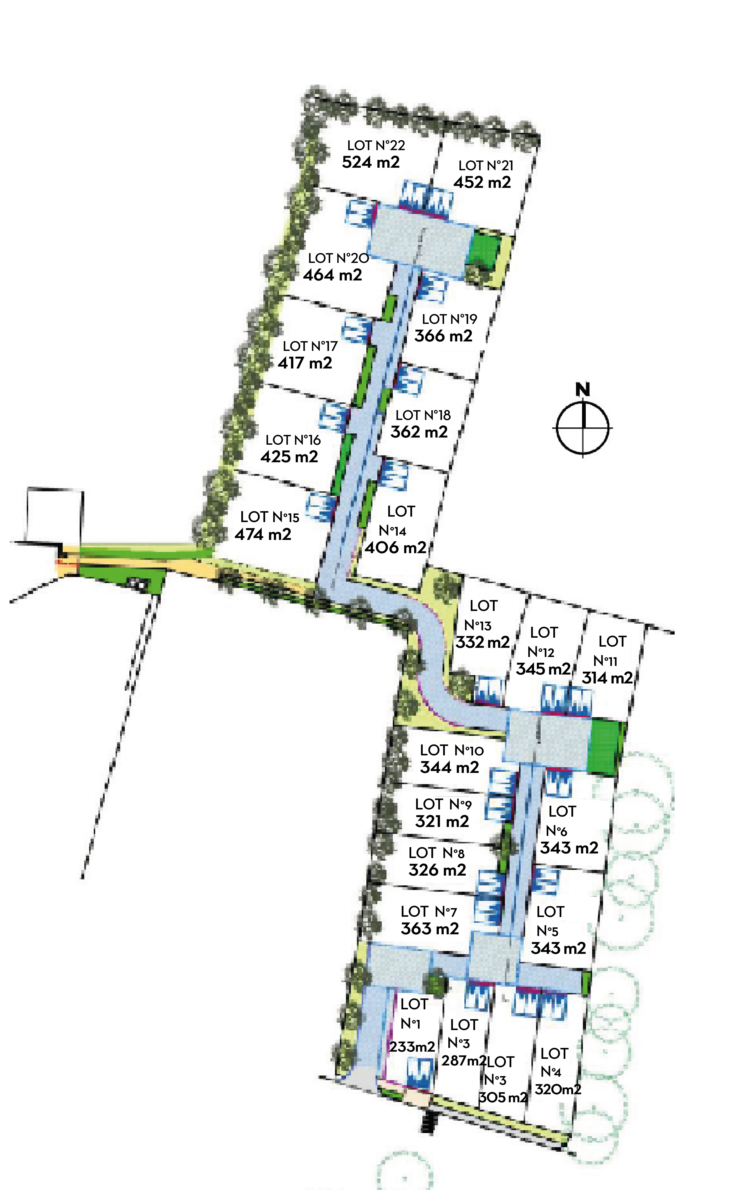
La ville de Louvigné du Désert annonce la mise en vente des terrains du lotissement communal Saint-Martin à compter du 19 mai 2025. Ce programme d'aménagement, conçu pour favoriser l'accession à la propriété, propose 22 lots de 233 m² à 524 m², à un prix de 52 euros du mètre carré.

Afin d'encourager les primo-accédants, la municipalité met en place une prime exceptionnelle de  3 000 euros, réduisant ainsi le coût d'acquisition pour ceux n'ayant jamais été propriétaires de leur résidence principale. Grâce à cette aide, le prix du lot le plus accessible descend à 39 euros du mètre carré.

Un projet accessible à tous
L'engagement de la municipalité s'inscrit dans une volonté de rendre la propriété accessible à un plus grand nombre d'habitants. Cette initiative vise à accompagner les jeunes foyers et les nouveaux arrivants dans leur parcours d'accession à la propriété.

Les personnes intéressées peuvent dès à présent se renseigner sur les modalités d'achat et d'attribution des lots en contactant la mairie de Louvigné du Désert ou en consultant les documents disponibles sur le site internet de la commune.


Retour
Voir les démarches administratives

Vos démarches administratives

© 2025 Commune de Louvigné du Désert   -  
Réalisation du site : Logo Sartup Agence Web Fougères